Flagstone
ULTIMATE COLLECTION
‹
›
‹
›
FLOORPLANS
OVERVIEW / INCLUSIONS
FLOORPLAN SIZES
Flagstone →
Flagstone
4bed
2bath
2car
10.64mwidth
SPECIFICATIONS
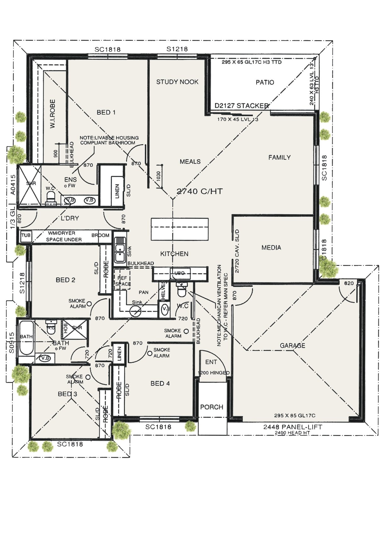
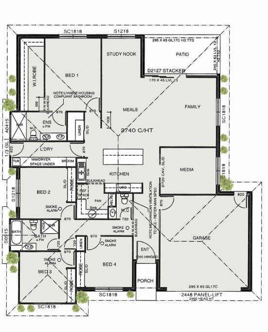
House Size (sq):238.95m²Total Area (m²): 624
Ground Floor Living (m²): 238.95
Width (m): 10.64
Depth (m): 21.24
FLOOR PLAN FEATURES
- Open-plan living, dining & kitchen
- Walk-in pantry
- Home theatre
- Guest bedroom & ensuite
- Upstairs lounge
- Master suite with ensuite
- Balcony & alfresco
- Double garage
DOWNLOAD Flagstone FLYER
More about this design
Style, grace, and architectural elegance; the brand new Westwood will simply take your breath away. Taking Hamptons living to a new level, everything in this home design speaks of pedigree.
Check Out the ultimate Inclusions
CREATE YOUR BROCHURE
🗂
FLOOR PLAN
SELECTED
▣
FACADE
SELECTED!
☰
CREATE YOUR
BROCHURE
Images in Brisbane Homez brochures, and on websites and social media may depict fixtures, finishes and features not supplied by Brisbane Homez or included in the Base Price including but not limited to retaining walls, landscaping, driveways and pathways, pergola, barbeque, decorator items, feature wall, decorator screen and shelving, water features, fencing, swimming pools, decks and letter boxes. Base Prices do not include optional upgrades including but not limited to alternative facades, window furnishings, light fittings, floor coverings, air conditioning or feature tile upgrades unless otherwise specified. No applied finishes to facades are included such as render, moroka, bag and paint, stack stone or tiles. These are optional upgrades. Due to timber shortages across the industry, minor changes to internal dimensions will change. Note, overall size of home is not affected. Floor plans in this brochure do not reflect these changes to frame size.
